

About Clarity
広島を隅々まで熟知した
宅建士&FPが丁寧に対応
当社はお客様との繋がりを大切にしています。広島で新たな一歩を踏み出す方々に、地元密着型ならではのサービス、そして信頼をお届けします。不動産に関することならなんでもお気軽にご相談ください。
会社概要Detached
house
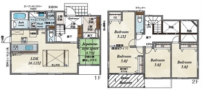
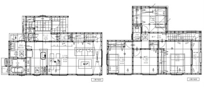
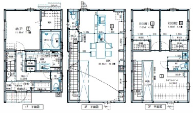
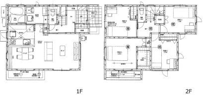
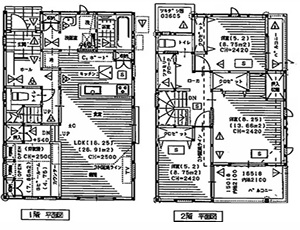
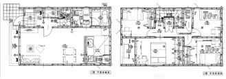
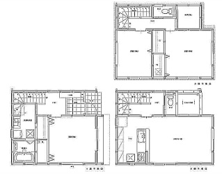
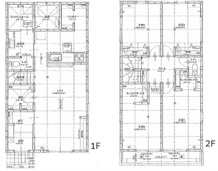
戸建売買
広島で住まいをお探しの皆様へ、新たな一歩をお手伝いします。
Used
Apartment
中古マンション売買
マンツーマンのサポートで安心。マンション選びならお任せください。
Land sales
土地販売
広島の土地探しのプロフェッショナルが、理想の土地を一緒にお探しします。
Reform&
Renovation
リフォーム・リノベーション
質の高い施工とアフターサポート、住まいを新しく彩ります。
Appraisal
& Purchase
査定・買取
広島の不動産を大切に評価。査定から買取まで、専門家がサポート。
Insurance Agency
損害保険代理業
理想の住まいが見つかった、その後の安心も我々が保証します。














