Line up

物件一覧

中古マンション エスパス大州通り

map

南区大州1丁目4-32

  • 写真:エスパス大州通り
  • 写真:エスパス大州通り
  • 価格

    4,180 万円

  • エリア

    南区大州1丁目4-32

  • 最寄り駅

    JR天神川駅(徒歩15分) 広島バス大州車庫前バス停(徒歩2分)

物件情報

物件情報
エスパス大州通り
種別
中古マンション
所在地
南区大州1丁目4-32
価格
4,180 万円
交通
  • JR天神川駅(徒歩15分) 広島バス大州車庫前バス停(徒歩2分)
築年月
2003年1月
総戸数
37戸
建物構造
SRC造14階建 8階部分
管理費
4,300円
積立金
10,000円
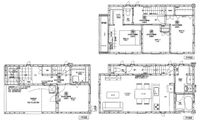
間取り
15.5LDK 6.6洋  6洋 4.9洋
バルコニー面積
--㎡
土地面積
934.73㎡ (282.76坪)
専有面積
67.25㎡
現況/引渡
空家/相談
取引態様
仲介
設備
リフォーム2026年1月末完了予定:全室クロス貼替 
CF貼替(洗面・WC) 給湯器・洗面台・トイレ・ユニットバス
システムキッチン交換 フローリング上貼 建具・ハンドル
コンセント交換 ダウンライト取替 スイッチパネル交換 
備考
  • 用途地域:近隣商業
    町会費:150円

物件の特徴

周辺環境・アクセス

  • スーパー

    きむらストアー フレスタ東雲店

  • コンビニ

    セブンイレブン広島大州1丁目店

  • 小学校

    大州小学校 大州中学校

  • 幼稚園・保育園

    大洲幼稚園

  • 病院

    杉原歯科 藤村医院

  • 郵便局

    広島大州郵便局