Line up
物件一覧
新築戸建 安佐南区伴東5丁目№5

安佐南区伴東5丁目17
-
価格
4,180 万円
-
エリア
安佐南区伴東5丁目17
-
最寄り駅
AL伴駅(徒歩5分) 下伴バス停(徒歩2分)
- ローンシミュレーター
物件情報
- 物件情報
- 安佐南区伴東5丁目№5
- 種別
- 新築戸建
- 所在地
- 安佐南区伴東5丁目17
- 価格
- 4,180 万円
- 交通
-
- AL伴駅(徒歩5分) 下伴バス停(徒歩2分)
- 築年月
- 2026年2月
- 総戸数
- 1戸
- 建物構造
- 木造
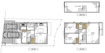
- 間取り
- 15.75LDK 8.25洋 5.28洋 5.28洋 WIC トイレ
- 土地面積
- 137.13㎡ (41.48坪)
- 建物面積
- 105.98㎡ (32.06坪)
- 現況/引渡
- 相談
- 取引態様
- 仲介
- 設備
- オール電化 エコキュート IHクッキングヒーター
食器洗乾燥機 カップボード 浴室乾燥機能 玄関ドア電子錠
1F・2Fウォシュレットトイレ オールLow-Eペアガラス アルミ樹脂複合サッシ
- 備考
-
- 省エネ基準適合住宅 外壁光セラ(KMEW)
制振ダンパー(住友ゴムMAMORY) フラット35S(金利Bプラン)対応
瑕疵担保責任保険(まもりすまい保険)
南向きのサンルーム(1階洗面所) ファミリークローク(1階ホール)
小上がりのある畳コーナー(1階・3帖相当) ダブルバルコニー
ウォークインクローゼット(2階主寝室) 書斎スペース(2階主寝室)
共有道路有
道路:公道 北 4m 水道:公営
駐車:縦列2台可 用途地域:第1種住居
- 省エネ基準適合住宅 外壁光セラ(KMEW)
物件の特徴
周辺環境・アクセス
-
スーパー
ビッグハウス沼田店 ゆめマート沼田店
-
コンビニ
ローソン広島沼田町伴店
-
小学校
伴東小学校 伴中学校
-
幼稚園・保育園
--
-
病院
--
-
郵便局
--

