Line up
物件一覧
新築戸建 安佐南区西原9丁目№2

安佐南区西原9丁目2
-
価格
4,890 万円
-
エリア
安佐南区西原9丁目2
-
最寄り駅
安佐南警察署バス停(徒歩4分)
- ローンシミュレーター
物件情報
- 物件情報
- 安佐南区西原9丁目№2
- 種別
- 新築戸建
- 所在地
- 安佐南区西原9丁目2
- 価格
- 4,890 万円
- 交通
-
- 安佐南警察署バス停(徒歩4分)
- 築年月
- 2026年8月
- 総戸数
- 1戸
- 建物構造
- 木造
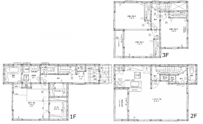
- 間取り
- 6洋 16LDK 5洋 4.5洋 1F2F3Fトイレ
- 土地面積
- 81.99㎡ (24.8坪)
- 建物面積
- 81.99㎡ (24.8坪)
- 現況/引渡
- 相談
- 取引態様
- 仲介
- 設備
- 全室断熱サッシ オール電化 太陽光発電 リビングエアコン
全室照明器具 全室カーテン - 備考
-
- ファミリークローク 吹抜 ユーティリティ 高気密・高断熱 高耐震
ガルバリウム鋼板屋根 光セラサイディング
フラット35S対応
リビングソファ ダイニングテーブル テレビ台
食器棚 リビング収納
別途、水道分担金要
道路:公道 南4.1m 水道:公営
駐車:並列2台可 用途地域:第1種住居
- ファミリークローク 吹抜 ユーティリティ 高気密・高断熱 高耐震
物件の特徴
周辺環境・アクセス
-
スーパー
フジ古市店 ゆめタウン大町店 藤三中筋店
-
コンビニ
--
-
小学校
原小学校 祇園東中学校
-
幼稚園・保育園
あい保育園祇園 祇園法輪幼稚園
-
病院
--
-
郵便局
--

