Line up
物件一覧
新築戸建 佐伯区五日市中央3丁目№1

佐伯区五日市中央3丁目5
-
価格
4,480 万円
-
エリア
佐伯区五日市中央3丁目5
-
最寄り駅
JR五日市駅(徒歩23分) 楽々園電停(徒歩13分)
- ローンシミュレーター
物件情報
- 物件情報
- 佐伯区五日市中央3丁目№1
- 種別
- 新築戸建
- 所在地
- 佐伯区五日市中央3丁目5
- 価格
- 4,480 万円
- 交通
-
- JR五日市駅(徒歩23分) 楽々園電停(徒歩13分)
- 築年月
- 2026年4月
- 総戸数
- 1戸
- 建物構造
- 木造
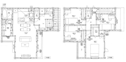
- 間取り
- 17.3LDK 4.5和 SIC 7.5洋 6.5洋 6洋 トイレ
- 土地面積
- 140.11㎡ (42.38坪)
- 建物面積
- 105.57㎡ (31.93坪)
- 現況/引渡
- 相談
- 取引態様
- 仲介
- 設備
- LED照明(玄関・廊下・キッチン等)
浴室換気乾燥機 宅配BOX完備
- 備考
-
- 長期優良住宅
住宅性能表示W取得(設計性能+建設性能)
耐震等級3 断熱等級6 定期点検実施
網戸・TVアンテナ等はオプションになります
フラット35S利用の場合、適合証明取得費用(88,000円税込)
物件名:広島市佐伯区五日市中央3丁目1期 全2棟(1号棟)
道路:公道 東約4m 水道:公営 ガス:都市ガス
駐車:縦列2台可 用途地域:第1種住居
- 長期優良住宅
物件の特徴
周辺環境・アクセス
-
スーパー
マルシェー五日市中央店 ユアーズ三筋店 イオンタウン楽々園店
-
コンビニ
ファミリーマート五日市コイン通り店 ローソン広島コイン通り店
-
小学校
五日市中央小学校 五日市中学校
-
幼稚園・保育園
認定こども園五日市こどもの国 鈴峰園保育園 坪井保育園
-
病院
医療法人社団初仁会桧田病院 石原脳神経外科医院
-
郵便局
観音郵便局

